Tùy theo mỗi kỹ sư và mỗi công trình thì sẽ có các bước thiết kế khác nhau. Tuy nhiên, trong bài viết dưới đây, RETESS sẽ chia thành 5 bước chính tổng quan thiết kế hệ thống điều hòa không khí HVAC cho tất cả các loại công trình như sau.
Bước 1: Khảo sát thiết kế công trình và lấy số liệu thiết kế
Tham khảo hồ sơ bản vẽ, thiết kế kiến trúc và kết cấu của công trình
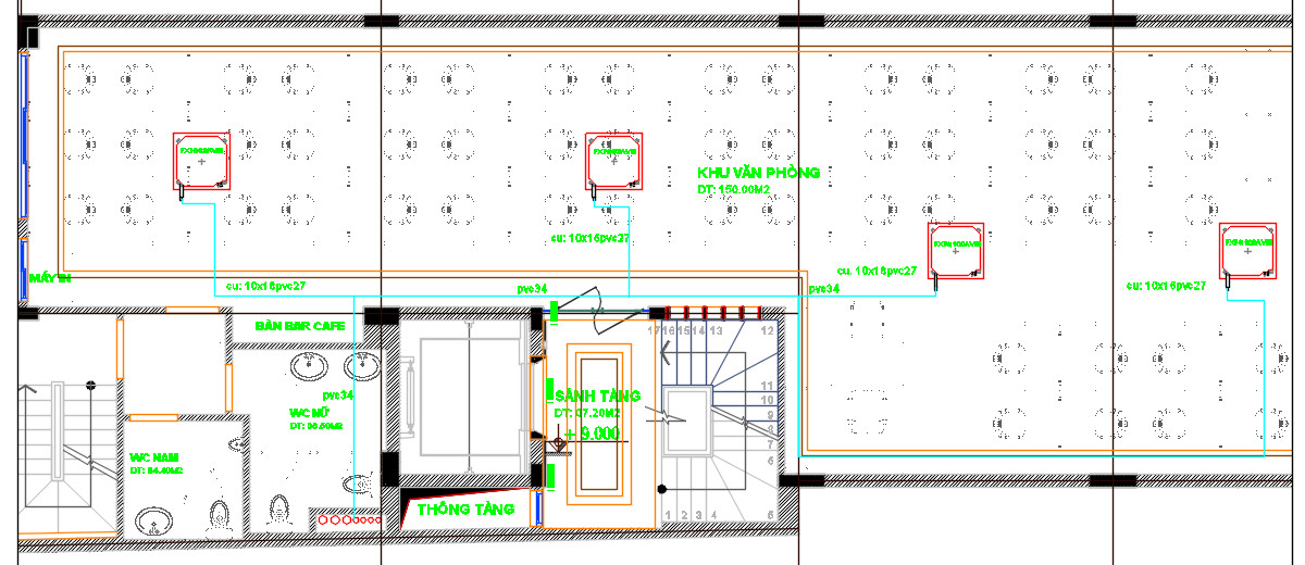
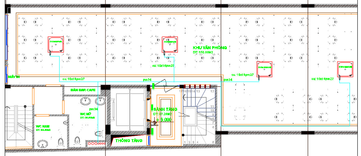
- Đầu tiên cần phải nắm rõ được các bản vẽ về mặt bằng của công trình để sau này các bạn có thể bố trí các thiết bị như ống gió, cửa gió, dàn nóng, dàn lạnh… của hệ thống điều hòa không khí HVAC.
- Bên cạnh đó, cần nắm được bản vẽ mặt đứng của công trình. Bản vẽ này sẽ giúp người thiết kế có cái nhìn tổng quan về công trình cần thiết kế như chiều cao công trình, cao độ các tầng, các phòng chức năng, vị trí tầng kỹ thuật…Từ đó, phục vụ cho việc tạo ra bản vẽ sơ đồ nguyên lý.
- Ngoài ra, bản vẽ mặt cắt cũng cần được để ý, nó giúp người thiết kế hiểu thêm về các nội dung mà bản vẽmặt bằng và mặt đứng không thể hiện được, ví dụ từ bản như cao độ trần giả để sau này biết cách lựa chọn và bố trí thiết bị, hay biết được kích thước của dầm, từ đó ta biết cách bố trí các đường ống tránh dầm hợp lý.
Tham khảo bản vẽ công trình để phục vụ cho thiết kế hệ thống điều hòa không khí HVAC
Đây là phần đầu tiên cũng là một trong những phần quan trọng của các bước thiết kế hệ thống điều hòa không khí HVAC.
Xem xét về tiến độ công trình
Cần bàn luận về tiến độ xây dựng để lên kế hoạch, cũng như sắp xếp công việc, nhân sự cho hạng mục thiết kế hệ thống điều hòa không khí HVAC. Bước này cũng khá quan trọng, nhằm đảm bảo được tiến độ dự án và chất lượng công việc.
Cần lưu ý những yêu cầu khác từ phía chủ đầu tư
Các chủ đâu tư có thể đưa ra những yêu cầu riêng cho công trình, ví dụ như giới hạn ngân sách cho hạng mục hệ thống HVAC, chỉ định hệ thống điều hòa không khí hoặc chỉ định vật tư thiết bị mà người thiết kế cần sử dụng… Tuy nhiên, người thiết kế có thể tư vấn cho các chủ đầu tư giải pháp khác tốt hơn nếu những yêu cầu họ đưa ra không thực sự phù hợp với công trình.
Bước 2: Phân tích các đặc điểm của công trình
Địa điểm xây dựng công trình
Dựa vào địa điểm xây dựng công trình, để biết được thời tiết, khí hậu tại khu vực xây dựng của công trình. Từ đó có thể lấy được các thông số vi khí hậu ngoài trời để tính toán như nhiệt độ, độ ẩm…
Phân tích công năng của công trình
Công năng của công trình là yếu tố rất quan trọng trong quá trình thiết kệ. Dựa vào công năng, có thể lựa chọn được các thông số để tính toán và thiết kế các hệ thống trong nhà sao cho hợp lý. Ví dụ như bệnh viện, trường học, nhà hàng, khách sạn, nhà xưởng… mỗi loại công trình có các tiêu chuẩn và thông số khác nhau. Tham khảo một số tiêu chuẩn về hệ thống điều hòa không khí HVAC như TCVN 5687:2010, Tiêu chuẩn ASHRAE 62.1 – 2010…
Phân tích những đặc trưng trong kiến trúc của công trình
Phân tích đặc trưng kiến trúc công trình ở đây là đi phân tích các đặc trưng liên quan để hệ thống điều hòa không khí HVAC. Ví dụ như vị trí lỗ mở dành cho điều hòa, thông gió; vị trí có thể đặt dàn nóng hay không; các vị trí đặc biệt khác như logia, ban công; hay thang bộ, thang máy là thang loại nào, bởi tùy theo từng loại thang mà có cách thiết kế hệ thống thông gió khác nhau.
Xác định hướng xây dựng công trình
Cần phải xác định hướng xây dựng công trình dựa vào bản vẽ kiến trúc, mục đích của việc xác định hướng xây dựng công trình là để có thể tính toán tải lạnh, xác định hướng gió chính xác và dễ dàng hơn. Ngoài ra, nếu như công trình sử dụng biện pháp thông gió tự nhiên thì hướng gió cũng ảnh hưởng trực tiếp đến vị trí đặt cửa gió. Do vậy, đây là phần bắt buộc phải thực hiện khi thiết kế hệ thống điều hòa không khí và thông gió.
Phân tích đặc điểm công trình là bước quan trọng khi thiết kế hệ thống điều hòa không khí HVAC
Bước 3: Sử dụng các tiêu chuẩn khi thiết kế hệ thống điều hòa không khí HVAC
- Tiêu chuẩn TCVN 5687:2010: Tiêu chuẩn quốc gia về “Thông gió – Điều hòa không khí – Tiêu chuẩn thiết kế”.
- Tiêu chuẩn ASHRAE 62.1 – 2010: Tiêu chuẩn của Mỹ về thông gió, cấp gió tươi…
- Tiêu chuẩn BS EN 12101-6-2005 Smoke and heat control systems: Tiêu chuẩn về tăng áp, hút khói cho các khu vực cầu thang, hành lang…
- Tiêu chuẩn QCVN 08:2009/BXD: Quy chuẩn kỹ thuật quốc gia về Công trình ngầm đô thị.
- Tiêu chuẩn Singapore SS553:2009: Tiêu chuẩn của Singapore dùng trong thiết kế hệ thống cơ điện cho công trình.
- Và một số các tiêu chuẩn thiết kế khác tùy vào loại công trình và yêu cầu từ phía chủ đầu tư.
Bước 4: Phân tích, tính toán tải lạnh và chọn thiết bị cho hệ thống điều hòa không khí HVAC
- Một trong những bước quan trọng nhất của thiết kế hệ thống điều hòa không khí và thông gió là phân tích, tính tải lạnh cho từng phòng và cho toàn bộ công trình.
- Sau khi đã có các tiêu chuẩn để tính toán, cần bắt tay vào công việc tính toán tải lạnh, lượng thông gió và lựa chọn thiết bị cho công trình.
- Trong khi tính tải lạnh, cần chia thành 2 bước tính toán:
- Trong giai đoạn thiết kế cơ sở, chỉ cần tính toán sơ bộ tổng tải lạnh cho công trình.
- Sau đó, dùng các phần mềm tính toán chính xác để tính toán tổng tải lạnh, và cuối cùng sẽ nhân với 1 hệ số an toàn (thường sẽ là từ 1 đến 1.1) để đưa ra tổng tải lạnh cuối cùng.
Lưu ý trong bước này, cần hiệu chỉnh năng suất làm lạnh của máy, với công thức hiệu chỉnh là: Q1 = K1*K2*K3*K4*Q2
Giải nghĩa các kí hiệu viết tắt:
Q2: là năng suất làm lạnh tiêu chuẩn chọn máy, đã được tính và chọn trọng cataloage của nhà sản xuất, tức là năng suất mà thiết bị chạy trong điều kiện tiêu chuẩn (nhiệt độ trong nhà là 27 độ C, nhiệt độ ngoài nhà là 35 độ C, chênh lệch độ cao giữa dàn nóng và dàn lạnh…). Đối với công trình thực tế, các thông số thường không được như điều kiện tiêu chuẩn, vì vậy mà cần có sự hiệu chỉnh năng suất làm lạnh của thiết bị trong các bước thiết kế hệ thống điều hòa.
K1 : Hệ số khi nhiệt độ ngoài trời thay đổi
K2 : Hệ số khi nhiệt độ trong nhà thay đổi
K3 : Hệ số khi chiều dài đường ống gas thay đổi
K4 : Hệ số khi chênh lệch chiều cao giữa dàn nóng và dàn lạnh trong nhà thay đổi (theo tiêu chuẩn chênh lệch là 0m)
Đội ngũ kỹ thuật của RETESS tính toán tải nhiệt còn dựa trên:
- Tính toán công suất lạnh (năng suất lạnh) cho từng khu vực: Tính tổn thất nhiệt làm lạnh trong một giờ. Tính lượng nhiệt hiện và nhiệt ẩn.
- Tổn thấp nhiệt qua kết cấu bao che (6 mặt tường, kính hay gỗ từ cửa sổ và cửa ra vào).
- Tổn thất nhiệt bên trong kết cấu bao che ( người, thiết bị có sẳn, thiết bị sinh nhiệt).
- Tổn thất nhiệt khác (thông gió, gió thải, gió tươi.v.v.).
- Tính tổng công suất lạnh cho cả tòa nhà hay khu vực
- Sử dụng phần mềm tính toán:
Bước 5: Tính toán phần hệ thống điều hòa không khí
- Đối với hệ thống điều hòa VRV thì cần tính toán đường ống gas, ống nước ngưng. Còn đối với hệ thống điều hòa Chiller thì cần tính toán đường cấp và hồi nước.
- Bố trí, sắp xếp các thiết bị trên mặt bằng, thực hiện thiết kế, vẽ các đường ống gió, ống nước…
- Tính toán tổn thất trên đường ống gió, và tính toán thủy lực trên đường ống nước (tê, van, cút trở lực, lưu lượng…)
**** Một số hình ảnh yesco thi công hệ thống điều hoà không khí:
Hình ảnh Chuẩn bị bệ móng đặt dàn nóng
Hình ảnh đi đường ống GAS/ Thoát nước
Hình ảnh hệ thống hoàn thiện
RETESS là địa chỉ uy tín tại Hà Nội cung cấp giải pháp thiết kế thi công hệ thống Điều Hoà Không Khí. RETESS có Kỹ thuật viên giỏi chuyên môn, có nhiều năm kinh nghiệm lắp đặt Điều Hoà Không KHí tại Hà Nội. Đừng ngần ngại gọi cho chúng tôi 0934548966 để đưa ra các giải pháo cho quý khách hàng!








